+7 (812) 635-68-22
+7 (911) 788-58-67
+7 (960) 244-74-13
+7(812)635-68-22
+7(911)788-58-67
+7(960) 244-74-13
Железобетонные
изделия (ЖБИ) Деревянные
опоры лэп Герметизирующие материалы Броня (Жидкая
керамическая
теплоизоляция)
изделия (ЖБИ) Деревянные
опоры лэп Герметизирующие материалы Броня (Жидкая
керамическая
теплоизоляция)
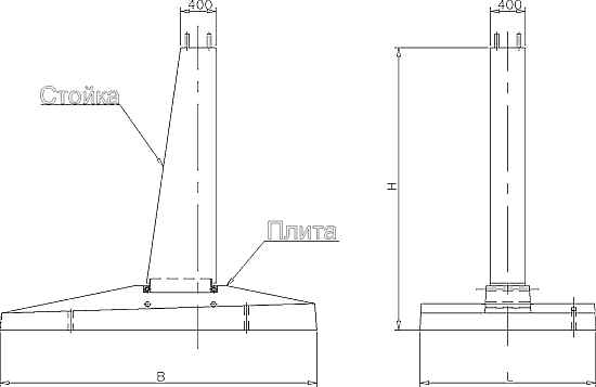
Фундаменты составные для стальных опор ВЛ 35-500 кВ
Данные изделия предназначены для унифицированных опор ВЛ 35-500 кВ.
Фундаменты представляют собой составные конструкции, собираемые из раздельно изготавливаемых железобетонных стоек и плит. На месте строительства стойки и плиты соединяются с помощью двух горизонтальных шпонок, которые устанавливаются в двух пазах, образуемых между уголками закладных деталей плиты и стойки.
| Марка изделия | Размер, мм | Расход материалов | Составные элементы | Класс бетона | Масса изделия, т | Наименование рабочих чертежей | |||||
| B | H | L | Бетон, м3 | Закладные детали, кг | Сталь, кг | Плита | Стойка | ||||
| Ф 1.5 x 1-2 | 1000 | 2700 | 1500 | 0,67 | 59,7 | П 1.5x1 | 95,45 | К 2.3-2 | В30 | 1,68 | Серия 3.407.1-144 Выпуск 1 |
| Ф 1.5 x 1.5-2 | 1500 | 2700 | 1500 | 0,79 | 59,7 | П 1.5x1.5 | 102,3 | К 2.3-2 | В30 | 1,98 | Серия 3.407.1-144 Выпуск 1 |
| Ф 1.5 x 2.2-2 | 2200 | 2700 | 1500 | 0,96 | 59,7 | П 1.5x2.2 | 121,8 | К 2.3-2 | В30 | 2,40 | Серия 3.407.1-144 Выпуск 1 |
| Ф2 x 1.6-А | 1600 | 3200 | 2000 | 1,31 | 100,9 | П 2x1.6-А | 218,25 | К 2.7-4 | В30 | 3,28 | Серия 3.407.1-144 Выпуск 1 |
| Ф2 x 2.1-2 | 2100 | 3200 | 2000 | 1,49 | 97,2 | П 2 x 2.1 | 196,7 | К 2.7-2 | В30 | 3,73 | Серия 3.407.1-144 Выпуск 1 |
| Ф2 x 2.1-4 | 2100 | 3200 | 2000 | 1,49 | 102,3 | П 2 x 2.1 | 201,8 | К 2.7-4 | В30 | 3,73 | Серия 3.407.1-144 Выпуск 1 |
| Ф2 x 2.3-А | 2300 | 3200 | 2000 | 1,61 | 152,3 | П 2x2.3-А | 295,5 | К 2.7-4А | В30 | 4,03 | Серия 3.407.1-144 Выпуск 1 |
| Ф2 x 2.8-2 | 2800 | 3200 | 2000 | 1,70 | 97,2 | П 2 x 2.8 | 218,6 | К 2.7-2 | В30 | 4,25 | Серия 3.407.1-144 Выпуск 1 |
| Ф2 x 2.8-4 | 2800 | 3200 | 2000 | 1,70 | 102,3 | П 2 x 2.8 | 223,7 | К 2.7-4 | В30 | 4,25 | Серия 3.407.1-144 Выпуск 1 |
| Ф2 x 3.0-А | 3000 | 3200 | 2000 | 1,86 | 227,3 | П 2x3.0-А | 450,0 | К 2.7-4Б | В30 | 4,65 | Серия 3.407.1-144 Выпуск 1 |
| Ф2 x 3.5-4 | 3500 | 3200 | 2000 | 2,02 | 210,2 | П 2 x 3.5 | 365,6 | К 2.7-4А | В30 | 5,05 | Серия 3.407.1-144 Выпуск 1 |
| Ф2 x 3.6-А | 3600 | 3200 | 2000 | 2,08 | 227,3 | П 2x3.6-А | 526,3 | К 2.7-4Б | В30 | 5,20 | Серия 3.407.1-144 Выпуск 1 |



