+7 (812) 635-68-22
+7 (911) 788-58-67
+7 (960) 244-74-13
+7(812)635-68-22
+7(911)788-58-67
+7(960) 244-74-13
Железобетонные
изделия (ЖБИ) Деревянные
опоры лэп Герметизирующие материалы Броня (Жидкая
керамическая
теплоизоляция)
изделия (ЖБИ) Деревянные
опоры лэп Герметизирующие материалы Броня (Жидкая
керамическая
теплоизоляция)
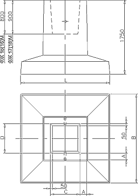
Фундаменты стаканного типа ФЖ, 71159-С
Сборные модернизированные железобетонные фундаменты стаканного типа предназначены для установки колонн одноэтажных производственных зданий сечением от 300×300 до 700×500, при учёте нулевого цикла производства работ. Кроме того фундаменты ФЖ 1М могут быть использованы для установки стоек конденсационных подвалов машинных отделений главных корпусов ТЭС и АЭС.
Для изготовления фундаментов применяется бетон не менее марки по прочности на сжатие М 200, по морозостойкости не менее марки F 50, водонепроницаемость не нормируется.
| Марка изделия | Размер, мм | Расход материалов | Марка бетона | Масса изделия, т | Наименование рабочих чертежей | ||||
| A | B | C/D | L | Бетон, м3 | Сталь, кг | ||||
| ФЖ 15М-1 | 150 | 2100 | 700/700 | 2100 | 2,68 | 116,6 | 200 | 6,7 | №71159-С АТЭПа |
| ФЖ 15М-2 | 150 | 2100 | 700/700 | 2100 | 2,68 | 147,8 | 200 | 6,7 | №71159-С АТЭПа |
| ФЖ 16М-1 | 150 | 1700 | 600/600 | 1700 | 1,95 | 67,2 | 200 | 4,9 | №71159-С АТЭПа |
| ФЖ 16М-2 | 150 | 1700 | 600/600 | 1700 | 1,95 | 82,8 | 200 | 4,9 | №71159-С АТЭПа |
| ФЖ 17М-1 | 150 | 1900 | 900/700 | 2500 | 3,22 | 139,9 | 200 | 8,1 | №71159-С АТЭПа |
| ФЖ 17М-2 | 200 | 1900 | 900/700 | 2500 | 3,22 | 170,0 | 200 | 8,1 | №71159-С АТЭПа |
| ФЖ 18М-1 | 200 | 2500 | 900/700 | 2500 | 3,78 | 196,2 | 200 | 9,5 | №71159-С АТЭПа |
| ФЖ 18М-2 | 200 | 2500 | 900/700 | 2500 | 3,78 | 252,8 | 200 | 9,5 | №71159-С АТЭПа |
| ФЖ 1М | 150 | 900 | 550/500 | 900 | 0,72 | 26,4 | 200 | 1,8 | №71159-С АТЭПа |



