+7 (812) 635-68-22
+7 (911) 788-58-67
+7 (960) 244-74-13
+7(812)635-68-22
+7(911)788-58-67
+7(960) 244-74-13
Железобетонные
изделия (ЖБИ) Деревянные
опоры лэп Герметизирующие материалы Броня (Жидкая
керамическая
теплоизоляция)
изделия (ЖБИ) Деревянные
опоры лэп Герметизирующие материалы Броня (Жидкая
керамическая
теплоизоляция)
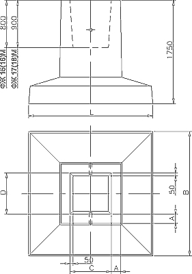
ФЖ 18М-2
Характеристики
- Марка изделия: ФЖ 18М-2
- Размер, мм: A: 200
- Размер, мм: B: 2500
- Размер, мм: C/D: 900/700
- Размер, мм: L: 2500
- Расход материалов: Бетон, м3: 3,78
- Расход материалов: Сталь, кг: 252,8
- Марка бетона: 200
- Масса изделия, т: 9,5
- Наименование рабочих чертежей: №71159-С АТЭПа
Цена по запросу
Сделать заявку
Обратный звонок


